Merkinnän yleiset tiedot

Teksti
Kirjoita tekstin sisältö Teksti-kenttään. Tee tarvittaessa rivin vaihto Enter-näppäimellä.
Tekstin sijoituspiste valitaan valintanapista. Teksti tasataan vasempaan (A) tai oikeaan reunaan tai se voidaan keskittää (B). Oletusarvoinen sijoituspistevalinta on tekstin tasaus vasempaan alanurkkaan. Napsauta sijoituspisteen valintanappi.
Kun määrität mittatoleranssin tai muokkaat mittalukua, mittaluku esitetään Teksti-kentässä ristikkomerkillä (#). Jos kyseessä on halkaisijamitta, ristikkomerkin edessä on myös halkaisijamerkki. Älä poista näitä merkkejä ikkunasta.
Voit muokata mittalukua siten, että lisäät mittalukuun merkkejä tai korvaat mittaluvun tekstillä. Voit kopioida merkkejä Teksti-kentässä ja liittää. Kuvassa on esitetty Teksti-kenttään kirjoitettu merkkijono ja mitta.
Tekstin korkeus
Määrittää tekstin korkeuden (h). Korkeudeksi voidaan määrittää myös negatiivinen arvo. Negatiivista arvoa on hyvä käyttää silloin, kun on mahdollista, että piirustuksen mittakaavaa joudutaan myöhemmin muuttamaan. Tällöin korkeus skaalautuu oikein mittakaavaan nähden. Arvolle on rajoitukset 10000 £ korkeus £ 10000 mm.
Tekstin kulma
Määrittää tekstin kulmaan (a). Positiivinen kulman arvo kääntää tekstiä vastapäivään.
Toleranssi
Määrittää mittalukuun liitettävän mittatoleranssin. Voit määrittää mittatoleranssin silloin, kun olet valinnut projektiosta mittaluvun ja toiminnon Ominaisuudet.
Kun kirjoitat kenttään toleranssitunnuksen esimerkiksi h6, ohjelma lisää mittalukuun myös eromitat.
Kun määrität eromitat, lisää mittojen väliin pilkku (,). Kirjoita mitat esimerkiksi seuraavasti:
+-0.01 (A)
0,-0.04 (B)
+0.3,+0.1 (C)
+0.3,+0.1) (D).
Tarkkuus
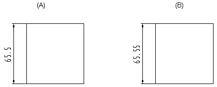
Määrittää mitoitustarkkuuden, mittaluvun desimaalitarkkuuden. Voit määrittää tarkkuuden silloin, kun olet valinnut projektiosta mittaluvun ja toiminnon Ominaisuudet. Mitoitustarkkuuden oletusarvo on 0.1. Ohjelma huomioi myös arvon, joka on >1.
Mitoitustarkkuuden muutos arvosta 0.1 (A) arvoon 0.01 (B) näkyy mittaluvun desimaalitarkkuudessa.
Tekstin taso
Määrittää objektin piirtotason. Objektit piirretään eri tasoille riippuen objektityypeistä. Tasot on määritetty asetusarvoihin, joissa kullekin objektille viivalle, tekstille, mitalle ja kuviolle on määritetty piirtotaso. Jos haluat poiketa oletusarvotasoista, voit muuttaa tason arvoa. Tasoja on yhteensä 256 (0-255).
Objektien tasoryhmittely tulee esiin muun muassa piirustuksen tulostuksessa. Voit määrittää piirustuksesta tulostettavat tasot. Tämä tarkoittaa sitä, että vain ne objektit piirretään tulosteeseen, jotka on valittu tulostettaviksi.
Tekstin väri
Määrittää tekstin värin. Ellei väriä ole määritetty, Vertex käyttää oletusarvomääritystä.
Viivan leveys
Määrittää tekstin viivan leveyden. Viivan leveydelle on oletusarvo, mutta voit muuttaa arvoa tarvittaessa.
Tekstin leveys
Määrittää merkin leveyden. Ominaisuus on kerroin, joka kaventaa (0<kerroin<1) tai leventää (kerroin>1) merkkiä suhteessa merkin korkeuteen ja leveyteen. Oletusarvo on 1, jota voit muuttaa tarvittaessa. Arvo on rajoitettu siten, että 0 £ kerroin £ 100.
Kertoimen 0.5 (A) arvo kaventaa merkkejä verrattuna kertoimen oletusarvoon 1 (B).
Laatikoitu
Määrittää tekstille kehyksen.