Note Properties

Text
Type the text in the Text field. If necessary, add a line break by pressing the Enter key.
You can select the locating point of the text by clicking a radio button. You can align the text to the left (A), center (B) or right. The default locating point option is aligning the text to the lower left corner. Click the radio button of the locating point.
When defining a dimension tolerance or editing a dimension, the dimension will be presented in the Text field by a number sign (#). If the dimension in question is a diameter, the number sign will be preceded by a diameter symbol. Do not delete these characters from the window.
You can edit the dimension by adding characters to it or replacing it with text. You can copy and paste characters in the Text field. A character string typed in the Text field and a dimension are displayed below.
Text Height
Defines the height of text (h). You can also use a negative height value. It is a good idea to use a negative value when the scale of the drawing is likely to be changed later, for example. The height will then be scaled correctly in relation to the scale. The allowable value range is -10000 £ height £ 10000 mm.
Text angle
Defines the text at an angle (a). A positive angle value will rotate the text counterclockwise.
Tolerance
Defines a dimension tolerance to be added to a dimension. You can define a dimension tolerance after selecting a dimension in the projection and selecting the Properties function.
When you type a tolerance value in the field, for example h6, the program will also add deviations to the dimension.
When defining the deviations, separate them with a comma (,). You can type the following dimensions, for example:
+-0.01 (A)
0, -0.04 (B)
+0.3, +0.1 (C)
+0.3, +0.1) (D).
Quality
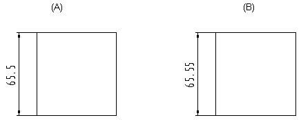
Defines the dimensioning precision, the decimal precision of the dimension. You can define a dimension precision after selecting a dimension in the projection and selecting the Properties function. The default dimension precision value is 0.1. The program will also accept values that are higher than 1.
Changing the dimension precision from 0.1 (A) to 0.01 (B) is shown in the number of decimals in the dimension.
Text Plane
Defines the layer on which an object is drawn. The objects will be drawn on different layers according to their type. The layers have been defined in the software settings, which select a drawing layer for each object: line, text, dimension and hatch. If you wish to use layers other than the defaults, you can change the layer value. There are a total of 256 layers (0-255).
The object layer groups are important when printing the drawing, for example. You can define the layers to be printed in a drawing. This means that only the objects you have selected will be printed.
Text color
Defines the color of text. If no color has been defined, Vertex will use the default color setting.
Line Width
Defines the line width of text. There is a default line width value, which you can change if necessary.
Text width
Defines the width of a character. This is a factor that makes the character narrower (0<factor<1) or wider (factor>1) in relation to the height and width of the character. The default value is 1. You can change this if necessary. The allowable value range is 0 £ factor £ 100.
The factor value 0.5 (A) will make the characters narrower compared to the default factor value 1 (B).
Boxed
Defines a frame for the text.