Huoneen suunnittelu tuotuun pohjakuvaan
Jos haluat hyödyntää olemassa olevaa rakennuksen pohjakuvaa, joka tuodaan Vertexiin DWG-tiedostona, suunnittelu etenee seuraavasti:
- Aktivoi projekti.
- Avaa DWG-tiedosto ja tallenna se Vertex-piirustukseksi projektikansioon.
- Muokkaa ja tallenna pohjakuvapiirustus.
- Aloita uusi huone.
- Lue pohjakuva alipiirustuksena.
- Suunnittele huone ja kalusta.
- Tallenna layout alipiirustukseen.
- Suunnittele seuraava huone ja käytä samaa alipiirustusta.
- Piilota alipiirustus.
Aktivoi projekti
Valitse toinen seuraavista:
- Valitse Tiedosto >
Projekti/Huone >
Avaa/Uusi. - Valitse Mallinnus |
Avaa/Uusi.
Avaa DWG-tiedosto ja tallenna se Vertex-piirustukseksi projektikansioon
Avaa DWG-tiedosto työikkunaan ja tallenna se Vertex-piirustukseksi projektikansioon.
- Tuo DWG-tiedosto Vertexiin Vedä ja Pudota -menetelmällä.
- Valitse Lue tiedosto: 2D-piirustukseksi.
- Valitse
Aktivoi vanha setup DWG-siirtoasetuksien keskusteluikkunassa. - Valitse Aktivoi setup: Oletus.
- Hyväksy OK-painikkeella.
- Valitse toiminto Tiedosto >
Tallenna nimellä. - Jatka keskusteluikkunassa seuraavasti:
- Valitse Tiedostotyyppi-kenttään Vertex 2D -piirustukset (*.vxp).
- Siirry aktiivisen projektin kansioon ../shared/projects/[projektin_nimi] Vertexin kansiorakenteessa.
- Nimeä tiedosto.
- Valitse Tallenna.
Muokkaa ja tallenna pohjakuvapiirustus
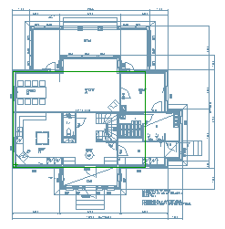
Tarvittaessa muokkaa piirustusta siten, että kuvassa näkyy vain tietty suunnittelualue. Poista kuvasta tarpeeton geometria ja tallenna tiedosto uudella nimellä.
Aloita uusi huone
Suunnittele aktiiviseen projektiin yksi huone kerrallaan. Avaa olemassa oleva huone tai tee uusi huone seuraavasti:
- Tee jompikumpi seuraavista:
- Valitse Tiedosto >
Projekti/Huone >
Avaa/Uusi. - Valitse Mallinnus | Projektit ja huoneet |
Avaa/Uusi.
- Valitse Tiedosto >
- Napsauta Huone osion painiketta
Uusi. - Määritä huonekortin tiedot ja hyväksy.
Lue pohjakuva alipiirustuksena
Lue tallentamasi pohjakuva alipiirustuksena huoneen 2D-piirustukseen.
- Valitse Piirtäminen | Työkalut |
Alikuvat >
Lue alipiirustus/alimalli. - Napsauttamalla painiketta
avaat Windowsin Open File -keskusteluikkunan tiedoston valintaa varten. - Tarvittaessa siirry aktiivisen projektin kansioon Vertexin kansiorakenteessa.
- Valitse piirustus, jonka aikaisemmin tallensit kyseiseen kansioon.
- Hyväksy tiedoston avaus OK-painikkeella.
- Osoita alipiirustuksen paikaksi 2D-piirustuksen nollapiste.

Paikan osoittamisen jälkeen pohjakuva näkyy työikkunassa.

Suunnittele huone ja kalusta
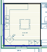
Lisää huoneen seinät alipiirustuksen päälle.
- Valitse Mallinnus |
Seinä. - Piirrä seinät 2D-ikkunassa likimain alipiirustuksessa olevan huoneen mittoihin.
Kun lisäät seiniä, osoita seinien nurkkapisteet kiertämällä huonetta myötäpäivään.

- Lisää tarvittaessa ovet ja ikkunat.
- Siirry huoneen 3D-malliin F2-näppäimellä.
- Lisää kalusteet huoneen 3D-malliin.
- Tallenna huone.
Tallenna layout alipiirustukseen
Kun olet suunnitellut layoutin (seinät ja kalusteet), voit tallentaa sen alipiirustuksena olevaan pohjakuvaan. Kun lisäät saman pohjakuvan alipiirustuksena toiseen huoneeseen, alipiirustuksessa näkyy myös aiemmin suunnittelemasi layout.
- Tallenna layout alipiirustukseen valitsemalla Tulosteet |
Tallenna layout alipiirustukseen. - Aloita uusi huone.
- Lue huoneeseen sama alipiirustus, johon tallensit edellisen layoutin.
- Jos kalusteet eivät näy alipiirustuksessa, valitse näkyviin kaikki tasot toiminnolla Näkymä | Tasot |
Kaikki.
Piilota alipiirustus
Piilota alipiirustus huoneen pohjakuvasta seuraavasti:
- Valitse Piirtäminen | Työkalut |
Alikuvat >
Ominaisuudet. - Tyhjennä alipiirustuksen valintaruutu.
- Hyväksy OK-painikkeella.
