G4 Laitossunnittelu
Piping Design, Isogen Isometrics
Laitos- ja
putkistosuunnittelu

Linjan mallinnus
Linja mallinnetaan kokoonpanomallissa. Kokoonpanon ominaisuudeksi tulee oletusarvoisesti
Putkikokoonpano, jos lisäät kokoonpanon putkistosuunnittelun
toiminnolla
Tee uusi.
Linja voi olla olla:
Mallin laajuudesta riippuen kokoonpanomallissa voi olla muun geometrian lisäksi useita linjoja. Linja voi olla:
- Päälinja
- Haaralinja
Kokoonpanopuun sisältöä on helpompi hallita, jos päälinja ja haaralinja mallinnetaan omina putkikokoonpanoina. Kokoonpanon rakennetta on myös helpompi tarkastella.
- Tietty putkikokoonpano on helposti valittavissa kokoonpanopuusta.
- Putkikokoonpanoon kuuluvat komponentit saadaan helposti näkyviin kokoonpanopuussa ja työikkunassa.
- Putkikokoonpanoon on helppo kohdistaa kokoonpanopuun toimintoja. Esimerkkinä, putkikokoonpanon piilotus tai vaihto.
Esimerkki - Linjan mallinnus
Esimerkiksi, luonnostellaan putkilinjan reitti.
- Lisää putkilinja osoittamalla pistein putken keskilinjan reitti.
- Pystysuuntaan (Z-akseli) lisätyn putkilinjan suunta kiinnittyy automaattisesti.
- Putkireitin muutoskohtiin, jossa putken suunta vaihtuu, putkien väliin lisätään automaattisesti putken osa (käyrä).
- Mallinna putkilinja lähelle oikeisiin mittoihin. Tarkenna putkien pituudet ja sijainti toisiinsa nähden geometrisilla ehdoilla.
Putkikomponenttien paikoitus
ehdoilla
- Jos putkilinja reititetään taivutetulla putkella, putkilinjan putken osat muodostavat yhden kokonaisuuden. Kokoonpanopuuhun putken osat kootaan ikään kuin alikokoonpanona. Osaluettelossa taivutetun putken osat esitetään yhtenä rivinä.
Voit jatkaa putkilinjan reititystä putkikomponentista.
- Jatka putkilinjaa yhtenäisenä tai saumattuna putkena.
- Jatka putkilinjaa komponentista.
- Jatka putkilinjaa istutuksella.
- Jatka putkilinjaa haarakomponentilla.
- Reititä automaattisesti.
Voit päättää putkilinja seuraavasti.
- Putken päähän
- Putkikomponenttiin
- Haarakomponentilla
- Istutuksella
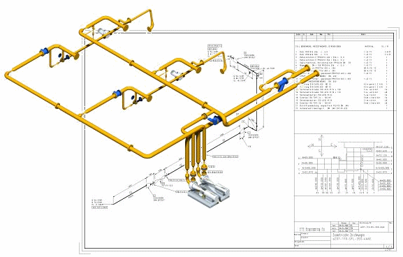
Isometrit
Valmis putkilinja sisältää kaiken suunnittelutiedon osaluettelointia ja kuvien tuottamista varten.
Putkilinjojen isometripiirustukset tuotetaan mitoitettuna ja osaluettelolla varustettuna.
Kannakointi, eristeet ja profiilit
Eristeen lisäys eristystaulukon avulla
Portaat, hoitotasot
Törmäystarkastelu
