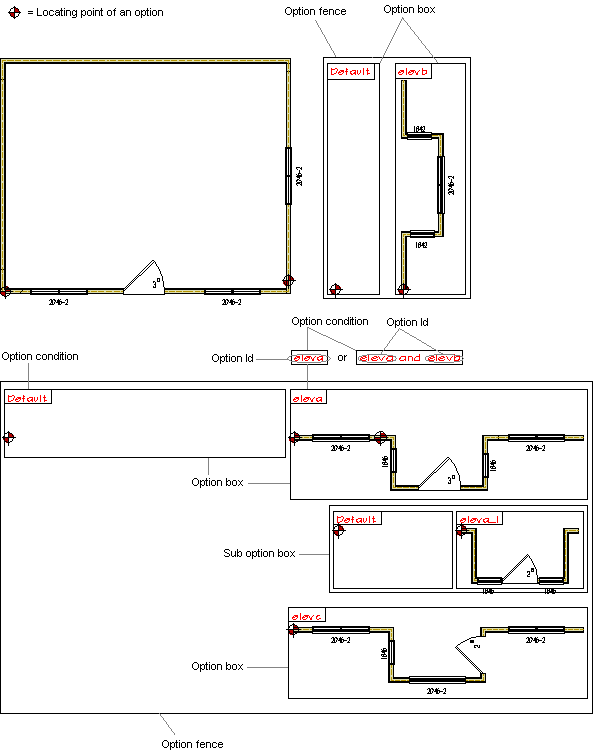
Basic concepts of options

Option System

The figure below explains some basic option system concepts used in this user manual.