Makrokomponentit elementtikuvaan
Framer
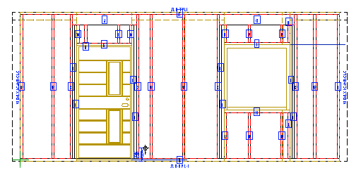
Makrokomponenttien geometria on mahdollista saada näkyviin seinäelementtikuvaan. Toiminnon käyttö vaatii seinäelementoinnin asetusten muokkausta. Asetusten muokkaus kuuluu järjestelmän pääkäyttäjän tehtäviin.

- Valitse Järjestelmä | Rakennekirjastot |
Seinä
Oletustoimintojen
määrittelyt. - Etsi avainsana ACCESSORIES. Jos avainsanaa ei löydy, voit lisätä sen tietokantaan seuraavasti:
- Lisää tietokantaan uusi rivi tai kopioi jokin olemassa oleva rivi.
- Kirjoita Kuvaus-kenttään esimerkiksi:
Makrokomponentit elementtikuvaan
- Valitse Suoritus-luettelosta arvo 1.
- Kirjoita Avainsana-kenttään:
ACCESSORIES
- Kirjoita Lisämääreet-kenttään niiden makrokomponenttien
tyyppinumerot, jotka haluat lisätä seinäelementtikuvaan. Käytä erottimena pilkkua. Esimerkiksi:
- 301 - Ikkuna
- 302 - Ulko-ovi
- 308 - Sisäovi
- Hyväksy OK-painikkeella.

Huomaa:
- Jos makrokomponentit eivät näy seinäelementtikuvassa, aseta kaikki tasot näkyviksi
työkalunauhan toiminnolla
Kaikki tasot. - Ominaisuus voidaan kytkeä pois päältä valitsemalla Suoritus-luettelosta 0.
- Ohjelma tallentaa muutokset käyttäjäkohtaiseen tietokantaan. Mikäli tietokantaa ei löydy custom-kansiosta, se kopioidaan ensin system-kansiosta. Vahvista kopiointi napsauttamalla viesti-ikkunassa Kyllä.
- Järjestelmä-välilehti on valittavissa vain, jos olet järjestelmän pääkäyttäjä.
