Optiojärjestelmän peruskäsitteitä
Optiojärjestelmä
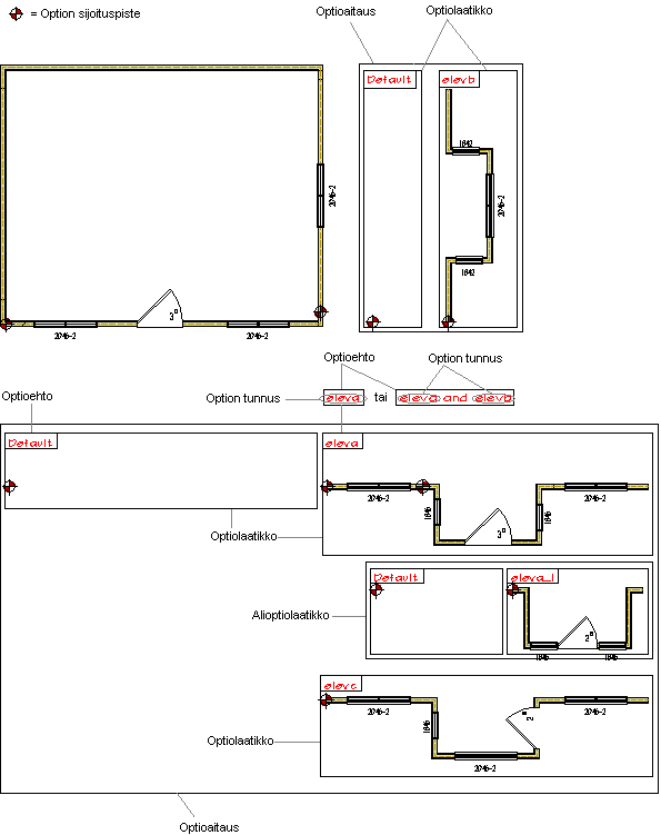
Alla olevassa kuvassa on esitetty tässä käyttöohjeessa esiintyviä optiojärjestelmän peruskäsitteitä.

Optiojärjestelmä
Alla olevassa kuvassa on esitetty tässä käyttöohjeessa esiintyviä optiojärjestelmän peruskäsitteitä.
