Seinien lisääminen parametriseen talomalliin
Käytä suunnittelussa parametrisia seiniä. Tällöin seinien ja korkeustasojen välille muodostuu sidonta. Lisää seinät ja muut rakennusosat suurin piirtein oikeille paikoilleen, ja paikoita ne myöhemmin tarkasti geometrisilla ehdoilla.
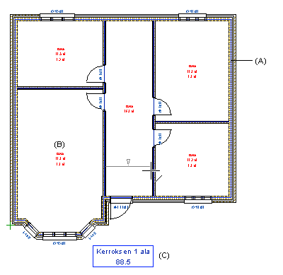
Kun lisäät seiniä, seinien keskiviivat (A) pohjakuvassa ovat merkkinä siitä, että asetus Assosiatiiviset seinät on käytössä.

- Lisää ulkoseinät. Huomioi seuraavat seikat:
- Aloita seinän lisäys piirustuksen nollapisteestä.

- Lisää seinät suunnilleen oikeille paikoilleen. Tarkan sijainnin määrität myöhemmin lisäämällä seinien välille geometrisia ehtoja.
- Osoita seinien nurkkapisteet kiertämällä rakennusta myötäpäivään.
Tällöin nollapisteeseen liittyville seinille muodostuu automaattisesti ehto Paikka kiinnitetty. Kun myöhemmin muokkaat pohjakuvaa asettamalla etäisyysehtoja, kyseiset seinät pysyvät aina paikoillaan ja muut seinät siirtyvät.
- Tee jompikumpi seuraavista:
- Kun lisäät avointa seinäketjua, valitse toiminto Valmis.
- Kun lisäät suljettua seinäketjua, osoita viimeinen piste aloituspisteeseen. Seinäketju sulkeutuu automaattisesti.
- Valitse lattiarakenne, jonka ohjelma lisää automaattisesti seinien perusteella omaan
kuva-mallipariinsa. Samalla lisätään myös huonetunnus (B) ja kerrosala (C). Korkeustasoissa
valittu rakenne on oletuksena luettelossa.
Jos suljet keskusteluikkunan
Peruuta-painikkeella, automaattista lattiaa ei lisätä ja asetus
Automaattiset lattiat ei ole tämän jälkeen käytössä. - Lisää väliseinät. Käytä apuvalikon aputoimintoa
Huoneen muodostava
seinä. Ohjelma luo pohjakuvaan automaattisesti uuden huoneen lisäämäsi seinän
perusteella. Seinien välille syntyy automaattisesti liitosehdot.
- Lisää ikkunat, ovet ja muut rakennusosat kuten tavallisesti.
Kun olet luonut pohjakuvan, voit määrittää geometrisia ehtoja rakennusosien välisten
suhteiden määrittämiseksi ja niiden mitoittamiseksi. Voit tarkastella seinän ehtoja
piirustuksessa tai mallissa valitsemalla tilannekohtaisesta valikosta toiminnon
Ehdot.
- Seinän keskiviiva on tasolla 218 Rakenneviiva.
- Kun asetukset Automaattiset lattiat ja Automaattiset huoneet ovat päällä, et voi poistaa lattioita tai huoneita. Ohjelma generoi ne aina automaattisesti uudelleen, kun muokkaat tai päivität pohjakuvaa.
- Kun lisäät ikkunoita ja ovia käyttäen aputoimintoa
Etäisyyden syöttö
pisteestä, muodostuu automaattisesti etäisyysehto. Ehto lisätään tasolle 92
Mittaehdot. - Seiniä lisättäessä vapaat seinän päät esitetään pohjakuvassa symbolilla:

