Tulosteet
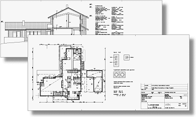
Kun rakennusmalli on valmis, siitä voidaan automaattisesti tuottaa pohja- ja julkisivupiirustukset. Ohjelma luo piirustukset asiakaskohtaisesti sovitetuille piirustusarkkipohjille, jotka kuuluvat valitsemaasi template-rakennukseen. Piirustusarkin nimiön tiedot luetaan järjestelmän asetuksista, rakennuksen tiedoista ja piirustuksen tiedoista.
Tarvittaessa voit muokata piirustusarkeilla olevia näkymiä lisäämällä niihin viivoja, tekstejä ja mittoja. Voit esimerkiksi lisätä julkisivukuvaan maan pintaa kuvaavan viivan. Kun muokkaat rakennusmallia, voit päivittää muutokset piirustuksiin samalla kuitenkin säilyttäen itse lisäämäsi viivat, tekstit ja mitat.
Vertex BD Architectural ja Pro -tuotteisiin kuuluvat lisäksi toiminnot, joilla voit määrittää leikkauksia ja tuottaa 3D-malllista perspektiivinäkymiä ja kuvia eri katselukulmista. Leikkauspiirustukset saat aikaan lisäämällä rakennuksen 2D-piirustukseen tarvittavan määrän leikkauslinjoja. Leikkauslinjojen perusteella voit luoda leikkaukset ja lisätä ne omalle piirustusarkilleen.
- Näkymät piirustusarkeilla
- Piirustusarkin avaaminen päivittämättä
- Päivitä ja avaa piirustusarkki
- Määritä leikkaus
- Avaa näkymäkuva arkilta
- Valitse näkymäkuvan muokkaustila
- Lisää kuva arkille
- Siirrä kuvaa arkilla
- Lisää piirustusarkki ja nimiö
- Korkeusmerkinnät
- Lisätoiminnot
- Piirustusluettelo

