Määritä sisänäkymä
Architectural
Toiminnolla voit määrittää näkymän rakennuksen sisäpuolelta. Näkymä on aksonometrinen projektio, ja voit rajata näkymään tulevan alueen pohjakuvassa. Voit käyttää toimintoa esimerkiksi keittiön kalusteiden tai muiden kiintokalusteiden kalustepiirustusten tuottamiseen. Voit lisätä näkymän piirustusarkille toiminnolla Lisää kuva arkille.
- Aktivoi piirustusikkuna.
- Tee jompikumpi seuraavista:
- Valitse Tulosteet | Piirustus |
Määritä leikkaus
Määritä
sisänäkymä. - Valitse toiminto rakennuksen dokumenttiselaimessa:
- Vie kohdistin otsikon Arkkitehtidokumentit / Sisänäkymät kohdalle.
- Avaa tilannekohtainen valikko hiiren oikealla painikkeella.
- Valitse Määritä sisänäkymä.
- Valitse Tulosteet | Piirustus |
- Valitse näkymän tulostusmalliksi Sisanakymat.vxm.
- Rajaa piirustuksesta kohdealue, josta näkymä luodaan. Osoita kohdealueen nurkkapisteet.
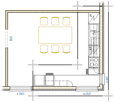
Alla olevassa esimerkkikuvassa on kohdealue rajattu siten, että pöytäryhmä jää näkymän
ulkopuolelle.

Suorakulmaisen alueen voit rajata helposti kahdella pisteellä: valitse suorakulmion lävistäjän alku- ja loppupiste.
- Valitse toiminto Valmis.
- Osoita 1. suuntapiste (Sp1 alla olevassa kuvassa).
- Tarvittaessa lukitse kohdistin.
- Osoita 2. suuntapiste (Sp2).

- Kirjoita sisänäkymän tunnus teksti-ikkunaan.
- Kirjoita sisänäkymän nimi teksti-ikkunaan. Näkymien muodostus -keskusteluikkuna avautuu.
- Valitse juuri määrittämäsi sisänäkymä keskusteluikkunan Näkymät-listakentässä.
- Valitse valintaruudut Päivitä näkymät ja Päivitä tulostusmallit.
- Napsauta Avaa-painiketta.
- Anna mittakavaa näkymälle. Näkymä avautuu erilliseen piirustusikkunaan.

- Sulje näkymä ikkunan Sulje-painikkeella.
Huomaa:
- Sisänäkymän kohdealueen reunaviivat ja tunnus näkyvät pohjakuvassa. Voit muokata
reunaviivoja kahvoista siirtämällä. Voit lisätä tai poistaa reunaviivan pisteitä. Kun olet
muokannut alueen reunaviivaa, päivitä näkymä.

- Reunaviivan ja tunnuksen piirto-ominaisuudet määritetään järjestelmän asetuksissa. Viivan nimi on VIEW_LIMITS, tunnustekstin nimi on VIEW_LABEL.
