Katon suunnittelu parametriseen talomalliin
Lisää parametrisen talomallin katto sille varattuun kuva-mallipariin. Käytä alipiirustuksena sen kerroksen pohjakuvaa, jonka seiniin haluat sitoa katon.
Huomaa: Älä käytä räystäslinjaa, kun lisäät kattoa parametriseen talomalliin.
Määritä katon parametrit ja lisää katto suurin piirtein oikeaan paikkaan. Sido katto paikoilleen geometrisilla ehdoilla:
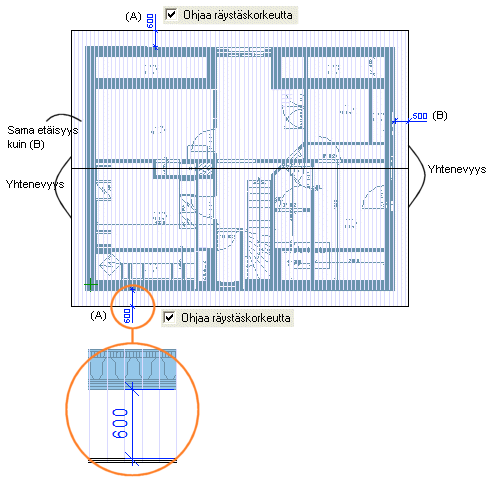
- Määritä räystäsylitykset sivuräystäillä käyttäen etäisyysehtoa. Valitse sivuräystään etäisyysehdolle ominaisuus Ohjaa räystäskorkeutta. Pohjakuvassa näkyvät katon kaikkien kerrosten reunaviivat, mutta vain pakatun peruskappaleen viiva on valittavissa, kun lisäät ehtoa.
- Määritä räystäsylitykset päätyräystäillä käyttäen etäisyys-, yhtenevyys- ja sama etäisyys -ehtoa.

Tämän jälkeen voit siirtää kattoa pystysuunnassa muokkaamalla katon parametria Mitta katon yläpintaan/alapintaan, katso Muokkaa kattolapetta.
Kun muokkaat seinän korkeutta joko seinän ominaisuuksia tai korkeustasoja muokkaamalla, katto seuraa muutosta.
Huomaa:
- Samalla tavalla voit sitoa parametrisen talomallin katon myös palkkeihin, esimerkiksi kuistin katon.
- Piilota alipiirustus heti, kun et enää tarvitse sitä. Näin vältät rakennusosien sitomisen alipiirustuksessa oleviin viivoihin vahingossa.
- Jos kattoa on vaikea lisätä ilman räystäslinjaa, poista räystäslinja ennen kuin määrität geometrisia ehtoja katon ja alipiirustuksen seinien välille. Räystäslinjan objektityyppi on Viivat.
- Jos kerroksiin räjäytetyn katon pintakerrokset eivät päivity oikein, kun muokkaat parametrista talomallia, pakkaa kerrokset ja räjäytä ne uudelleen.
